High up on Mirrabooka Hill
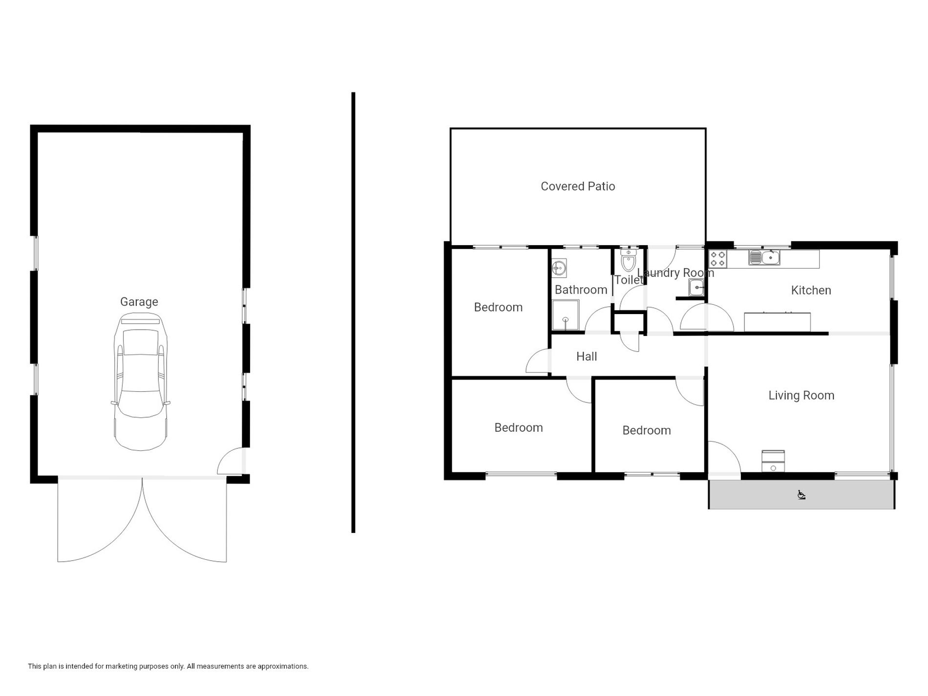
                Nestled in the serene surroundings of Mallacoota, this brick home consists of three bedrooms, one bathroom and open plan kitchen/living area.
North facing windows keeping the house warmer in winter and cooler in summer. For added climate control, this home offers a reverse cycle air conditioner and wood heater.
Leading outside from the laundry is a covered entertainment area - offering a blank canvas for styling and finishing as you desire.
Established gardens and lush green lawn, perfect for enjoying the fresh air and soaking up the sunshine. Double door garage/workshop.
Roof recently replaced.
A short walk to the boardwalk, lake & jetties.
Contact us today to arrange a viewing and make this home yours.
- Reverse Cycle Air Conditioning
- Outdoor Entertainment Area
- Secure Parking
- Shed
- Water Tank





























